Grijp nu uw kans om uw bedrijf te vestigen of uit te breiden op het dynamische bedrijventerrein "De Kooi". Aan de Voltweg 3 wordt dit moderne en hoogwaardig bedrijvencentrum gerealiseerd, bestaande uit 16 multifunctionele en koppelbare units. Deze units bieden een unieke combinatie van kwaliteit, veelzijdigheid en een uitstekende bereikbaarheid.
Een Strategische Toplocatie
De bedrijfsunits zijn strategisch gelegen op het levendige bedrijventerrein "De Kooi", op korte afstand van de snelweg A4/A58. Hierdoor zijn steden als Antwerpen, Rotterdam en Breda binnen handbereik. Het terrein kent een mix van nationaal en internationaal opererende bedrijven en biedt, mede door de nabijheid van Vliegbasis Woensdrecht, extra zakelijke kansen.
Flexibiliteit en Maatwerk
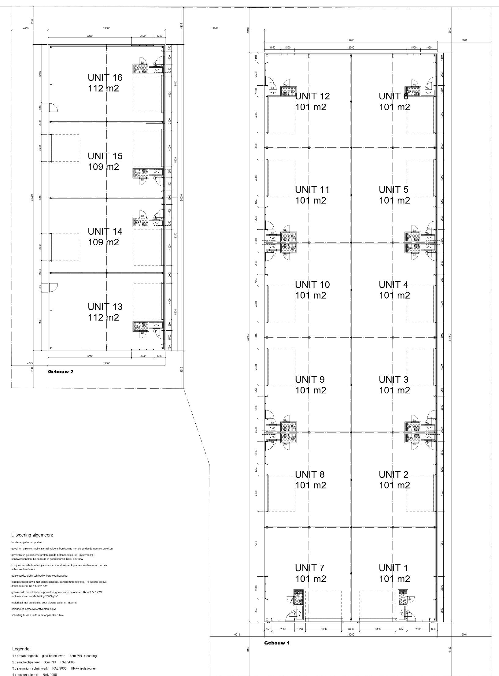
De 16 units zijn ontworpen met flexibiliteit als uitgangspunt. Met oppervlaktes variërend van 101 m² tot 112 m², kunt u de unit kiezen die perfect aansluit bij uw bedrijfsbehoeften. Bovendien zijn de units koppelbaar, waardoor u uw bedrijfsruimte kunt uitbreiden tot 600 m² of zelfs meer. De units kunnen optioneel worden voorzien van een verdiepingsvloer, die u naar eigen wens kunt indelen.
Locatie & Flexibiliteit
In collegiale samenwerking met:
Baas Makelaars
Vang 1
4661 TX Halsteren
Vraagprijs: v.a. € 169.000,- V.O.N.
VVE kosten worden later bepaald.
Indeling Bedrijvencentrum
Kies uw basisunit (vanaf 100 m²) en informeer naar de koppelingsmogelijk-heden.
Vier units bieden een eigen, afgesloten buitenterrein:
Hoogwaardige Specificaties
Complete Voorzieningen
Financieel & Oplevering
In collegiale samenwerking met:
Onze Vastgoedpartner
Zuidzijde Haven 39a
4611 HC Bergen op Zoom
0164 82 03 63