Azurietdijk 127

4706 BN Roosendaal
Vraagprijs: € 349.500,-  Kosten koper

Interesse?

Bel of mail met De Rooy Makelaardij & Assurantiën
(0165) 543050
info@derooymakelaardij.nl
Omschrijving

Gelegen in de geliefde woonwijk Kortendijk, bevindt zich deze riante tussenwoning met garage. De woning (ca. 140 m²) biedt vrij uitzicht, vier ruime slaapkamers, een speelse woonkamer, een dichte keuken en een garagebox. Ze ligt tegenover een groenzone, waardoor er sprake is van veel privacy. Daarnaast is de ligging gunstig ten opzichte van diverse (basis)scholen, het winkelcentrum en uitvalswegen.

Parkeren kunt u rondom de woning of voor uw eigen garage. Via de voortuin bereikt u de entree van de woning. Hier vindt u de meterkast, het toilet met fonteintje en toegang tot de woonkamer.

De speelse woonkamer heeft veel lichtinval dankzij de grote raampartijen. Aan de voorzijde is ruimte voor een comfortabele zithoek bij de open haard. Aan de achterzijde, grenzend aan de dichte keuken, is er voldoende plek voor een royale eethoek. Via de spiltrap in de woonkamer bereikt u de eerste verdieping.

De dichte keuken is opgesteld in een hoekopstelling en voorzien van een 4-pits kookplaat en oven. Ook bevinden zich hier de aansluitingen voor de wasmachine en droger. Vanuit de keuken heeft u toegang tot de achtertuin.

Op de eerste verdieping biedt de overloop toegang tot drie slaapkamers, de badkamer en de trap naar de zolderverdieping. De slaapkamers zijn ruim (ca. 8, 14 en 15 m²), waarvan twee met inbouwkasten. De grotendeels betegelde badkamer beschikt over een toilet, een bad/douchecombinatie en een wastafel. Ook hier zijn aansluitingen voor wasmachine en droger aanwezig.

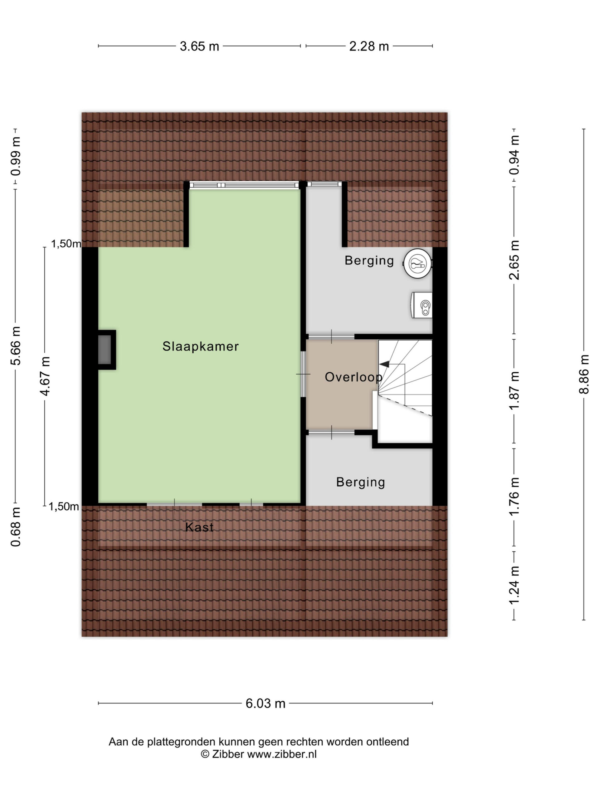
De zolderverdieping is bereikbaar via een vaste trap. Hier bevindt zich de vierde slaapkamer, voorzien van een dakkapel die zorgt voor extra lichtinval. Deze ruimte is perfect te gebruiken als slaapkamer, hobbykamer of werkplek. Daarnaast vindt u op deze etage meerdere bergingen en de opstelling van de cv-installatie / boiler.

De achtertuin is gelegen op het westen en biedt veel privacy zonder directe inkijk. De tuin is groen ingericht en beschikt over een zonnescherm en een terras. Vanuit de tuin heeft u toegang tot zowel de garage als de achterom. De garage is voorzien van een roldeur en elektra - ideaal als opbergruimte of voor het stallen van uw auto.

Bijzonderheden:

- Tussenwoning van (ca. 140 m²) met garage
- Gelegen in de Kortendijk
- Deels voorzien van rolluiken
- Ruime woonkamer en keuken
- 4 Slaapkamers

Kenmerken
Overdracht
Status Onder bod
Prijs € 349.500,- kosten koper
Aanvaarding In overleg
Bouwvorm
Soort woning Eengezinswoning
Type woning Tussenwoning
Bouwjaar 1974
Bouwvorm Bestaande bouw
Indeling
Woonoppervlakte 140 m²
Perceeloppervlakte 206 m²
Inhoud 497 m³
Aantal kamers 6
Aantal slaapkamers 4
Energie
Energieklasse C
Buitenruimte
Tuin Achtertuin, voortuin
Kadastrale gegevens
Sectie C
Perceelnummer 7353

Locatie

Afbeeldingen

Plattegronden

360º foto's

Video's

envelopeeyefilm-playcameraphone-handsetmap-markermapchevron-down-circle
linkedin facebook pinterest youtube rss twitter instagram facebook-blank rss-blank linkedin-blank pinterest youtube twitter instagram