De Ster 5

4724 GE Wouw
Vraagprijs:  Prijs op aanvraag

Interesse?

Bel of mail met De Rooy Makelaardij & Assurantiën
(0165) 543050
info@derooymakelaardij.nl
Omschrijving

Volledig levensloopbestendig wonen en met alle dagelijkse voorzieningen binnen handbereik: dát vindt u aan de Ster 5 in Wouw. Dit keurig onderhouden 3-kamerappartement op de eerste verdieping combineert comfort, ruimte en een zonnige buitenruimte met een bijzonder prettige ligging in het hart van het dorp. Dankzij de liftinstallatie en de praktische indeling geniet u hier van zorgeloos en toekomstbestendig woongenot. Wouw staat bekend om haar gezellige dorpskern met diverse evenementen, horeca, supermarkten, verswinkels én sportverenigingen. Dankzij de uitstekende ligging nabij de A4, A27 en A58 bereikt u snel de omliggende steden. Daarbij biedt de omgeving volop fiets- en wandelroutes. U woont hier rustig, maar toch midden in de levendigheid van het dorp – een ideale combinatie.

1e Verdieping:

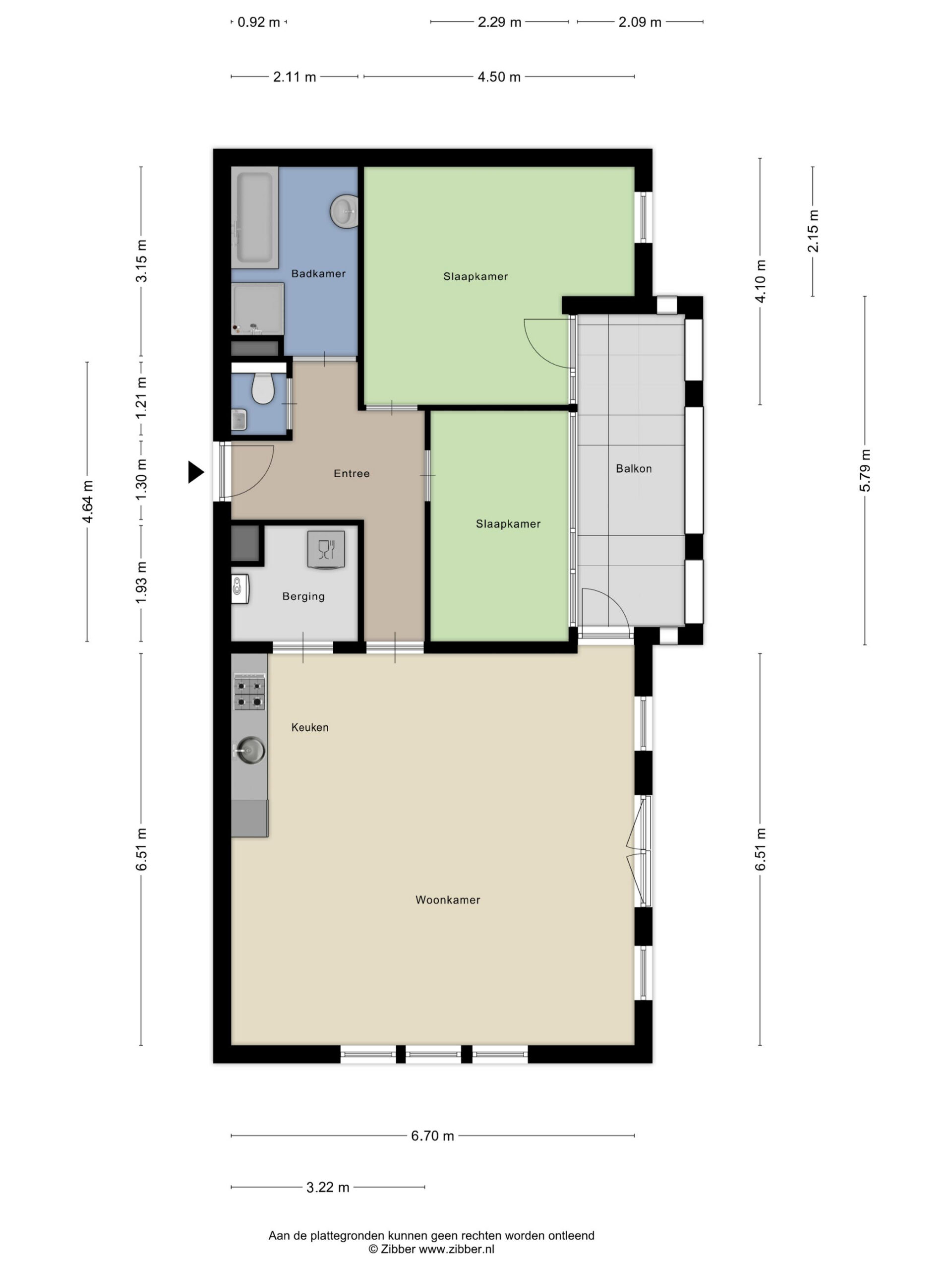
Het appartementencomplex (bouwjaar 2000) voldoet aan de moderne bouweisen en beschikt over uitstekende isolatie en een groen energielabel. Hierdoor profiteert u van lage energielasten. Binnen treft u een heerlijk lichte woonkamer met open keuken – het sfeervolle hart van het appartement.
Vanuit zowel de living als de hoofdslaapkamer stapt u zo het zonnige overdekte balkon op. Het balkon is gelegen op het Zuidoosten en hier kan vooral in de ochtenduren genoten worden van de zon.
De woonkamer beschikt over een open keuken met rechte lichte opstelling voorzien van diverse inbouwapparatuur te weten een koelkast, gaskookplaat en afzuigkap. Vanuit de keuken is er een praktische inpandige bijkeuken/berging bereikbaar met o.a. wasmachineaansluiting, CV-HR-combiketel bouwjaar 2020 en een mechanische ventilatie unit.
Het appartement beschikt verder over een ruime hoofdslaapkamer, een volwaardige tweede slaapkamer, een nette badkamer met wastafel, ligbad en douche. Verder is er een aparte toiletruimte.
Op de begane grond bevindt zich uw eigen (fietsen)berging. Parkeren kan eenvoudig in de directe omgeving van het complex.

Bijzonderheden:
Het appartement maakt deel uit van de VvE Residentie Markthof.
De maandelijkse bijdrage bedraagt € 239,- en omvat onder andere de opstalverzekering, reservering voor planmatig onderhoud, dagelijks onderhoud en nutsvoorzieningen van de algemene ruimten.
Oppervlakte appartement ca. 92 m2.
Geheel voorzien van een moderne vinylvloer.
Woonkamer en keuken groot ca. 44 m2.
Slaapkamers groot ca. 16 m2 en 9 m2.
Woonkamer en hoofdslaapkamer zijn voorzien van een elektrische screen.

Is dit comfortabele en complete appartement uw nieuwe thuis?
Wij plannen graag een bezichtiging om u de ruimtes, sfeer en locatie persoonlijk te laten ervaren.

Kenmerken
Overdracht
Status Verkocht
Prijs Op aanvraag
Aanvaarding In overleg
Bouwvorm
Bouwjaar 2000
Bouwvorm Bestaande bouw
Indeling
Woonoppervlakte 92 m²
Inhoud 302 m³
Aantal kamers 5
Aantal slaapkamers 2
Energie
Energieklasse A
Buitenruimte
Tuin Geen tuin
Kadastrale gegevens
Sectie E
Perceelnummer 4055

Locatie

Afbeeldingen

Plattegronden

360º foto's

Geen panorama's van deze woning beschikbaar.

Video's

envelopeeyefilm-playcameraphone-handsetmap-markermapchevron-down-circle
linkedin facebook pinterest youtube rss twitter instagram facebook-blank rss-blank linkedin-blank pinterest youtube twitter instagram