Status: Verkocht onder voorbehoud

Lijsterbeslaan 31

4702 AN Roosendaal
Vraagprijs: € 299.900,-  Kosten koper

Interesse?

Bel of mail met De Rooy Makelaardij & Assurantiën
(0165) 543050
info@derooymakelaardij.nl
Omschrijving

Wonen op steenworp afstand van het centrum van Roosendaal. Aan de Lijsterbeslaan staat deze fijne hoekwoning met een zonnige tuin op het zuiden, voorzien van een overkapping, een riante berging en een garage met eigen parkeergelegenheid ervoor. De woning beschikt over drie slaapkamers op de eerste verdieping en een gemoderniseerde, ruime zolder met een dakkapel over de volledige breedte (totale gebruiksvloeroppervlakte van de woning ca. 89m2). Hier kunt u eenvoudig een extra slaapkamer, hobbyruimte of werkplek creëren. De woning ligt in een rustige, sfeervolle buurt, vlak bij diverse voorzieningen en uitvalswegen.

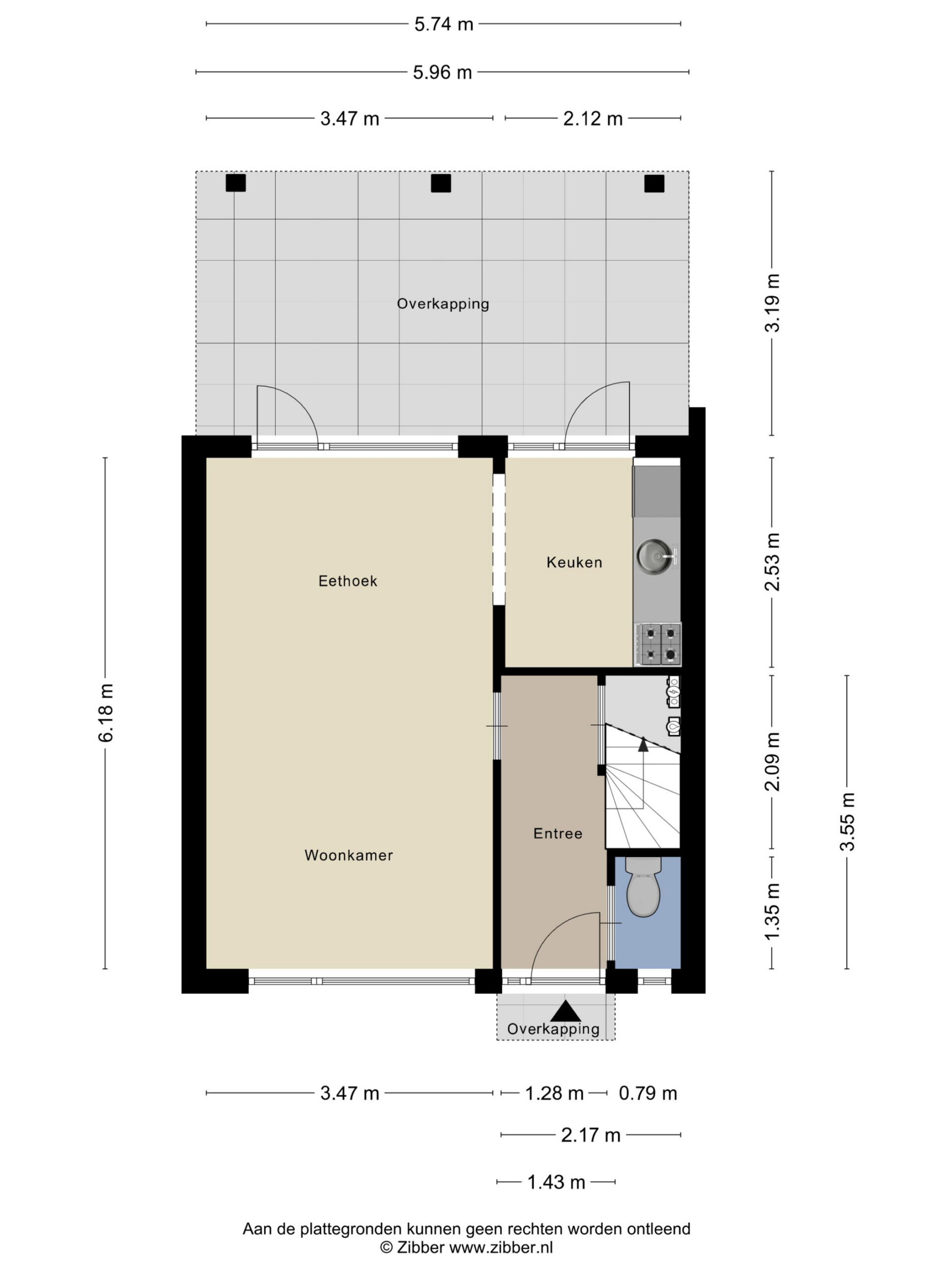
Begane grond

Parkeren doet u gemakkelijk op uw eigen parkeerplaats voor de garage aan de achterzijde van de woning. Via de rustige omgeving bij de woning, waar alleen bestemmingsverkeer komt, bereikt u de entree via de voortuin. De hal is voorzien van een plavuizen vloer en spachtelputz wandafwerking. Vanuit de hal heeft u toegang tot het toilet, de trapkast met meterkast, de trapopgang naar de eerste verdieping en de woonkamer.

De lichte, praktisch ingedeelde woonkamer biedt veel natuurlijk licht en is afgewerkt met spachtelputz op de wanden, een houtenvloer en een plafond met nette schuurwerkafwerking. Vanuit deze ruimte heeft u toegang tot zowel de open keuken als de achtertuin.

De keuken is opgesteld in een rechte opstelling. Houd er rekening mee dat deze aan modernisering toe is. De ruimte biedt voldoende mogelijkheden om een ruimere keukenopstelling te realiseren. Ook vanuit de keuken is er toegang tot de achtertuin.

Vanaf de overloop heeft u toegang tot drie slaapkamers, de badkamer en de trap naar de zolderverdieping. De slaapkamers zijn grotendeels afgewerkt met een houten vloer en spachtelputz wandafwerking. De slaapkamer aan de achterzijde beschikt bovendien over een wastafel met meubel. Alle ramen op deze verdieping zijn voorzien van rolluiken.

De compacte badkamer is uitgerust met een douche en wastafel, en heeft een raam voor natuurlijke ventilatie.

Via de vaste trap bereikt u de gemoderniseerde zolderverdieping, voorzien van een brede dakkapel en een groot dakraam. Dit zorgt voor veel lichtinval. De ruimte is strak afgewerkt met een nette laminaatvloer en handige inbouwkasten. Hier bevindt zich ook de opstelling van de cv-ketel. Deze zolder is een multifunctionele ruimte die gebruikt kan worden als extra slaapkamer, hobbykamer of werkplek.

De riante achtertuin ligt op het zuiden en beschikt over een fijne overkapping met vlonder. U geniet hier van optimale privacy: geen directe achterburen! Er is voldoende ruimte voor een comfortabele loungehoek en de groene borders geven de tuin een natuurlijke uitstraling. De tuin heeft bovendien een zij-ingang naast de woning.

Achter in de tuin bevindt zich een ruime berging. De berging is voorzien van water, elektra en aansluitingen voor wasmachine en droger. Vanuit de berging heeft u toegang tot de garage, die is voorzien van elektra en een kanteldeur. Parkeren doet u op eigen grond, direct voor de garage.

Bijzonderheden

- Hoekwoning met riante berging
- Aluminium kozijnen met dubbel glas
- Volledig voorzien van rolluiken
- Genoeg elektrapunten aanwezig
- Garagebox, parkeren kan voor eigen garage
- Ruime achtertuin op het zuiden

Kenmerken
Overdracht
Status Verkocht onder voorbehoud
Prijs € 299.900,- kosten koper
Aanvaarding In overleg
Bouwvorm
Soort woning Eengezinswoning
Type woning Hoekwoning
Bouwjaar 1957
Bouwvorm Bestaande bouw
Indeling
Woonoppervlakte 71 m²
Perceeloppervlakte 237 m²
Overige inpandige ruimte 18 m²
Inhoud 316 m³
Aantal kamers 5
Aantal slaapkamers 3
Energie
Energieklasse E
Buitenruimte
Tuin Achtertuin, voortuin
Kadastrale gegevens
Sectie D
Perceelnummer 6859

Locatie

Afbeeldingen

Plattegronden

360º foto's

Geen panorama's van deze woning beschikbaar.

Video's

envelopeeyefilm-playcameraphone-handsetmap-markermapchevron-down-circle
linkedin facebook pinterest youtube rss twitter instagram facebook-blank rss-blank linkedin-blank pinterest youtube twitter instagram