Status: Beschikbaar

Schubertlaan 25

4702 KA Roosendaal
Vraagprijs: € 399.500,-  Kosten koper

Interesse?

Bel of mail met De Rooy Makelaardij & Assurantiën
(0165) 543050
info@derooymakelaardij.nl
Omschrijving

Gelegen op een rustige, verkeersluwe locatie, maar toch op korte afstand van het centrum, NS-station en uitvalswegen, biedt deze uitgebouwde twee-onder-een-kapwoning het perfecte evenwicht tussen comfort, ruimte en bereikbaarheid. De woning is tot in de puntjes verzorgd, voorzien van een moderne afwerking, ruime garage, multifunctionele tussenruimte én een zonnige tuin met overkapping. Hier woon je rustig, maar met alle voorzieningen binnen handbereik!

Indeling:

Voortuin & entree:
De onderhoudsvriendelijke voortuin is volledig betegeld en modern aangelegd. De woning is bereikbaar via de voordeur aan de zijkant van de woning, maar ook via een praktische, multifunctionele tussenruimte die grenst aan de oprit. Deze ruimte biedt directe toegang tot de keuken, garage en achtertuin – ideaal voor gezinnen of voor wie wonen en werken wil combineren.

Begane grond:
Bij binnenkomst via de voordeur kom je in de hal met meterkast, modern toilet, trapopgang en toegang tot de woonkamer. De woonkamer is licht en ruim, afgewerkt met strakke stucwerk wanden en een sfeervolle houten vloer. Aan de achterzijde bevindt zich de open keuken met een praktische L-vormige opstelling en diverse inbouwapparatuur te weten een vaatwasser, gaskookplaat, oven, afzuigkap en koelkast.
Vanuit de keuken (2015) is de tussenruimte bereikbaar – een royale multifunctionele ruimte die toegang biedt tot de dubbele garage/berging. Deze is voorzien van dubbele openslaande deuren naar de oprit, een wasmachine-/droger aansluiting en toegang tot de achtertuin.

Achtertuin:
De fraai aangelegde achtertuin is een oase van rust en privacy. Hier geniet je van een sfeervolle overkapping, perfect voor lange zomeravonden of om het hele jaar door beschut buiten te zitten.

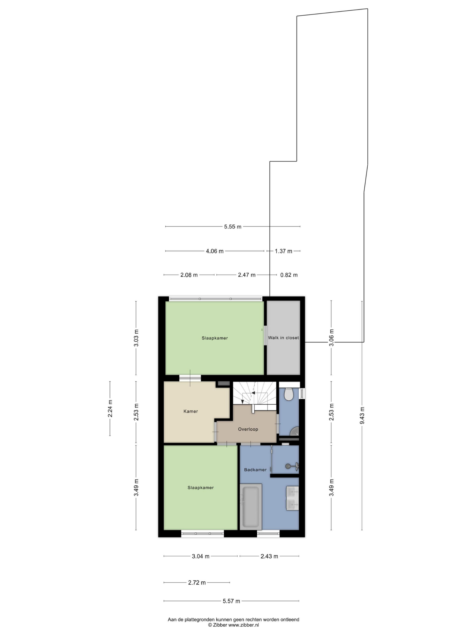
Eerste verdieping:
Dankzij een uitbouw is deze verdieping verrassend ruim. Er zijn twee ruime slaapkamers, een hobbykamer, een moderne badkamer en een aparte toiletruimte. De royale hoofdslaapkamer aan de achterzijde beschikt bovendien over een riante inloopkast en airco installatie. De moderne badkamer (2015) is volledig betegeld en voorzien van een inloopdouche, ligbad en een wastafelmeubel. Ook beschikt de badkamer over natuurlijk daglicht middels een groot raam.

Tweede verdieping:
Via een vaste trap bereik je de tweede verdieping, waar een derde ruime slaapkamer is gerealiseerd. Een ideale ruimte voor een tienerkamer, werkkamer of logeerkamer. Deze kamer beschikt ook over een airco installatie.

Bijzonderheden:
Uitgebouwde twee-onder-een-kapwoning met garage
Rustige, verkeersluwe ligging.
Op korte afstand van centrum, station en uitvalswegen.
Geheel voorzien van dubbele beglazing en grotendeels voorzien van rolluiken.
Drie ruime slaapkamers en hobby-/werkkamer, welke toegang geeft tot de ouderslaapkamer.
Moderne luxe badkamer (2015).
Diepe garage/berging (groot ca. 35m2) met dubbele openslaande deuren.
Volledig modern afgewerkt en instapklaar.
Zonnige tuin met overkapping.
Voldoende parkeergelegenheid in de straat.
In verband met de huidige regelgeving omtrent het opmaken van energielabels beschikt deze woning over een F label.
Het gasverbruik en elektra verbruik zijn echter laag. Gas 990m3 per jaar en elektra 2744 kwh per jaar.

Ben je op zoek naar een ruime en instapklare woning op een rustige locatie, maar toch dicht bij alle voorzieningen? Dan is dit je kans! Neem snel contact op voor een bezichtiging!

Kenmerken
Overdracht
Status Beschikbaar
Prijs € 399.500,- kosten koper
Aanvaarding In overleg
Bouwvorm
Soort woning Eengezinswoning
Type woning Twee onder een kapwoning
Bouwjaar 1964
Bouwvorm Bestaande bouw
Indeling
Woonoppervlakte 102 m²
Perceeloppervlakte 209 m²
Overige inpandige ruimte 51 m²
Inhoud 543 m³
Aantal kamers 6
Aantal slaapkamers 3
Energie
Energieklasse F
Buitenruimte
Tuin Achtertuin, voortuin, zijtuin
Kadastrale gegevens
Sectie C
Perceelnummer 5914

Locatie

Afbeeldingen

Plattegronden

360º foto's

Video's

envelopeeyefilm-playcameraphone-handsetmap-markermapchevron-down-circle
linkedin facebook pinterest youtube rss twitter instagram facebook-blank rss-blank linkedin-blank pinterest youtube twitter instagram